建筑师:张轲 + 创意品牌:锐驰
时间:2016.09.26-10.16,9:00-19:00
地点:金奖胡同 7 号
在刚刚公布的2016年阿卡汗建筑奖获奖名单中,建筑师张轲凭借茶儿胡同8号“微杂院”项目斩获该奖,成为继2010年李晓东后第二位获此殊荣的中国建筑师。张轲和他主持的标准营造团队多年来坚持研究和探索更舒适的居住环境,改善和营造更高品质的空间场所。在“遇见什刹海”九个院子的院落更新和方案展示中,他继续探索在传统胡同集成空间中,集成生活的可能性,他的作品表达和探讨了作为建筑师介入到北京城市更新中的专业思考和社会责任。
阿卡汗建筑奖(Aga Khan Award for Architecture)是世界最具影响力的建筑奖项之一,由阿卡汗四世殿下于1977年创立,每3年评选一次。阿卡汗建筑奖关注转变与提升建成环境质量的建筑作品,旨在奖励包括在当代设计、社会参与、历史保护、环境改善等各方面均有优秀表现的项目。目前世界范围内已有超过110个建筑荣获该奖。2016年10月3日,在阿布扎比阿莱茵贾希里城堡举行了阿卡汗建筑奖发布会,市政事务部主席兼交通运输部主席兼阿布扎比执行委员Awaidha Murshed Al Marar宣布了2016年阿卡汗建筑奖获奖名单。
时间:2016.09.26-10.16,9:00-19:00
地点:金奖胡同 7 号
在刚刚公布的2016年阿卡汗建筑奖获奖名单中,建筑师张轲凭借茶儿胡同8号“微杂院”项目斩获该奖,成为继2010年李晓东后第二位获此殊荣的中国建筑师。张轲和他主持的标准营造团队多年来坚持研究和探索更舒适的居住环境,改善和营造更高品质的空间场所。在“遇见什刹海”九个院子的院落更新和方案展示中,他继续探索在传统胡同集成空间中,集成生活的可能性,他的作品表达和探讨了作为建筑师介入到北京城市更新中的专业思考和社会责任。
阿卡汗建筑奖(Aga Khan Award for Architecture)是世界最具影响力的建筑奖项之一,由阿卡汗四世殿下于1977年创立,每3年评选一次。阿卡汗建筑奖关注转变与提升建成环境质量的建筑作品,旨在奖励包括在当代设计、社会参与、历史保护、环境改善等各方面均有优秀表现的项目。目前世界范围内已有超过110个建筑荣获该奖。2016年10月3日,在阿布扎比阿莱茵贾希里城堡举行了阿卡汗建筑奖发布会,市政事务部主席兼交通运输部主席兼阿布扎比执行委员Awaidha Murshed Al Marar宣布了2016年阿卡汗建筑奖获奖名单。
△金奖胡同7号院-胡同老人儿童之家
△胡同老人儿童之家概念模型
“遇见什刹海”2016北京国际设计周,“九个院子”之“胡同老人儿童之家”开幕式于2016年9月30日上午11点在金奖胡同7号顺利举行。此次展览由建筑师张轲携手创意品牌锐驰共同完成。在室内,置入一个集约型的基础设施系统(即独立的服务核心),这是一个开放的,并具有集约服务空间的公共场所。胡同里缺少活动空间的老人、儿童能够在这里聊天、阅读、喝茶…… 原有拥挤杂乱院落空间演变为了一个可供老人和儿童活动交流的胡同老人儿童之家。建筑师张轲在开幕式现场,与学生们和周边居民一起,进行了一场关于“大杂院”新可能性的讨论。

△张轲向学生与观众讲解设计理念
在介绍中,张轲表示,希望能将空间服务于大众,使之成为周边居民的共享空间,并广泛征求居民意见,以便植入更多便民设施。老人与儿童拥有更多胡同生活的时间,但他们的活动空间往往十分有限,因此张轲和标准营造团队将空间定位于主要面向老人和儿童使用。
△周边居民发表感言
在开幕式上,周边居民发表感言:这种时尚与古老的结合,给我们老北京人耳目一新之感——北京胡同住房十分狭小,设计师的大胆创新使四合院呈现出时尚新风,期待这种新颖且实用的居住方式融入到老百姓的生活中。
△张轲与到场嘉宾合影
集成模块:集成的空间综合体

△集成模块的设计理念
张轲和标准营造团队针对胡同里狭小的空间,研发了多种可拼合的功能模块满足不同的空间和使用需求。将厨房、卫生间、储藏间、洗衣间、起居室、卧室等所有日常功能集合到最小的空间中。
集成空间:集约的基础设施系统


△集成空间的集成功能模块
对于胡同的生活品质较低、不够现代化的问题,研发的这套集成模块,以期在最小的空间内将现代化的生活设施植入古老的四合院空间之中。此次“遇见什刹海”金奖7号院展示的功能模块占地仅4.56 ㎡,2000mm X 2280mm的集成模块,包含了厨房、卫生间、淋浴、洗衣、储藏、阅读、展示、休憩等全部功能,在满足生活使用基本需求外,释放出更多交流互动的空间,供胡同里的老人、儿童使用。


△集成功能模块包含了厨房、洗衣房、储藏室
开放式的厨房,内置了排烟通风管道,将抽油烟机、微波炉、电磁炉、冰箱、洗碗机、净水器等厨房电器藏到柜中,同时还设置了料理柜和储物空间,满足所有厨房功能需求。侧面的洗衣房既有洗衣机还有烘干机,不同规格的隔断可以做储藏使用。


△功能齐全的卫生间
不足1.5㎡的卫生间不仅安置了马桶,还将洗漱、淋浴、置物、储藏、采暖等功能融入其中,完善的上下水设施,为使用后的清理带来了便利,实际体验后,空间并没有感觉拥挤,反而还可以在厕所内阅读。


△张轲展示集成模块功能

△模块之上可放置双人床供起居使用
将日常起居的所用功能融合到集成模块中,以提高使用者的生活水平。模块中的家电可以无碍使用,所有的线路都在墙壁内部进行了穿插处理。这种集成模块使得大幅度提升空间生活品质成为可能。
在展览期间,尽可能地打开主屋的空间,为居民提供更多的交流场所。引来了周围的老人、儿童在这里阅读、聊天、嬉戏。

△书柜与多样的储物格,为狭小的空间提供了大容量的生活

△尽管只是展览,但这是一个完全可以使用的卫生间,你甚至可以在里面洗一个热水澡!

△可以使用的厨房与洗衣机,二层放上床垫,便是可供睡觉的“大床”


△张轲展示集成模块功能

△模块之上可放置双人床供起居使用
将日常起居的所用功能融合到集成模块中,以提高使用者的生活水平。模块中的家电可以无碍使用,所有的线路都在墙壁内部进行了穿插处理。这种集成模块使得大幅度提升空间生活品质成为可能。
在展览期间,尽可能地打开主屋的空间,为居民提供更多的交流场所。引来了周围的老人、儿童在这里阅读、聊天、嬉戏。

△书柜与多样的储物格,为狭小的空间提供了大容量的生活

△尽管只是展览,但这是一个完全可以使用的卫生间,你甚至可以在里面洗一个热水澡!

△可以使用的厨房与洗衣机,二层放上床垫,便是可供睡觉的“大床”
未来方案:植入游廊的大院空间

△未来方案效果图
在后期规划中,还将植入游廊,将主屋与使用空间串联,使或是起居室、活动室、图书室等为人所用的空间产生联系与互动。

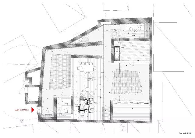
△方案模型

△一层平面图
前后院均留出的开敞空间,供居民活动交流。对于寸土寸金的四合院来说,留出大量的院落空间供人们使用似乎是一件很奢侈的事情,但这院落的“留白”,无疑会使人们的生活品质得到较高的提升——人们可以在拥挤胡同中的一个开敞院落内,拥有自由交流、散步、晒太阳等的休憩空间,难能可贵。

“遇见什刹海”
由北京什刹海阜景街建设指挥部、北京天恒置业集团有限公司、北京天恒正宇投资发展有限公司、CBC(China Building Centre)共同主办,《城市·环境·设计》(UED)杂志社承办的“遇见什刹海”于北京国际设计周期间(2016.09.23-10.07)在北京什刹海地区盛大绽放,围绕什刹海的历史街区和院落展开,包括“九个院子”、“洞/和光同尘”和“回归•院生活”等。
“遇见什刹海”的主题是“约会设计与艺术”。什刹海地区是北京历史文化保护区,也是北京仅存的几片原住居民区,这里保留了大量传统院落和街巷。新时代已经为什刹海注入了新的活力,而我们此次的课题是:如何通过设计的力量复活什刹海。
编辑:Alexandra、MissW.
摄影:肖剑、MissW. 、Alexandra
编辑:Alexandra、MissW.
摄影:肖剑、MissW. 、Alexandra