
在邢台大剧院建筑设计国际竞赛中,全国工程勘察设计大师胡越领衔团队作为受邀的4家国内外知名建筑团队之一,鉴于以往大剧院项目的建设经验,他们以“城市舞台”为主要构思有效地避免了大剧院成为城市的负资产,并努力将剧院建筑从城市“孤岛”中解放出来,使其成为居民日常生活的重要组成部分及城市转型发展的活力点!

BIAD胡越工作室是北京市建筑设计研究院有限公司以国家勘察设计大师胡越总建筑师命名的直属建筑专业工作室。在设计院强大技术实力的支持下,通过科学的管理和运营把工作室建设成一个站在国内建筑设计学术前沿,创作高水平建筑作品,为建院实现全国卓越的设计企业的目标做出突出贡献,是胡越工作室一直以来不懈坚持的战略目标。




方案效果图 © 胡越大师团队


模型图 © 胡越大师团队

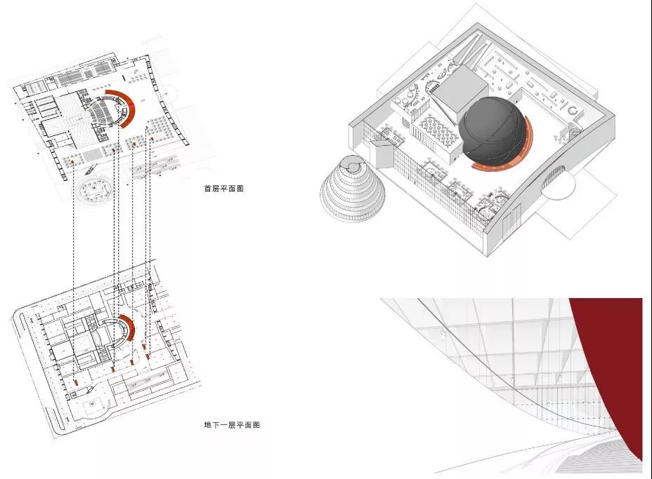
01
城市中的大剧院
剧院空间在城市的日常生活中发挥着重要作用,胡越大师领衔团队第一个入手点是从城市的角度去考虑方案设计。邢州大道是经过大剧院的重要的城市干道,从目前的城市规划格局看,邢州大道北侧布置了许多城市大型综合体,将大剧院南侧、邢州大道以北的线性空间规划为一个连续的城市公共空间,让大剧院和科技馆一带的公共空间成为重要的节点成为本次方案的突破点。为了打造这个城市公共空间,大剧院的设计面向南侧即邢州大道的一侧做了像舞台一样大的开口,试图使邢州大道和剧院大厅形成一个看与被看的互动舞台,以此吸引市民进入并享受剧院空间。


02
大剧院与市民广场
邢台大剧院和邢台科技馆均位于市民广场两侧。团队在方案的表达上并没有削弱市民广场的设计,反而进行了强化。他们在广场上设置了进入地下商街的入口以及一个为商街主入口提供自然采光的光导管陈列。同时,广场以大面积的硬质铺地设计为主来凸显庄严肃穆,以便在此能够举行一些城市级别的重要活动,同时为市民广场提供一个好的前景。

从广场进入大剧院 © 胡越大师团队

地下商街向大厅延伸 © 胡越大师团队
03
庄严雄伟的大剧院
大剧院在城市中心的地位在方案中也得到了充分的体现。它不只是城市里的文化娱乐场所,还为邢台提供了一处可以召开高规格会议的会场。同时,在前广场、主入口、大厅以及贵宾接待的地方也应对其中心地位做了相应的设计。大剧院东侧广场被设计成剧院的主要入口,前广场由位于中心的光导管阵列和大面积硬质广场组成。在主入口两侧设置了大面积的浅水池,此水池有三重功能:一是景观,二是为大厅自然通风提供良好的条件,三是在不适宜有水的季节也变成一个硬质铺装广场。

剧院前的广场设计 © 胡越大师团队


大剧院将成为召开最高规格正式会议的会场 © 胡越大师团队
大剧院东立面为一个巨大的弧形实墙立面,中间的圆形入口使得东立面既庄严雄伟,又充满艺术气息。大面实墙可以设置灯光秀和广告。另外,为了增强进入剧院的仪式感,主入口和球形造型的观众厅位于同一轴线上,进入观众厅的各种入口都以中心对称的方式布局,进一步强化了轴线和进入剧院的庄严感。为了能在舞台上安排主席团,贵宾用房给予了适当加大,同时贵宾入场的流线也设置了两条。一条用于观演,一条用于开会。

庄严雄伟的剧院主入口和前广场 © 胡越大师团队

强化空间轴线 © 胡越大师团队

04
超级文化广场
超级文化广场是本次大剧院设计的核心。因为大剧院与科技馆在上位规划中比较分散,所以为了让大剧院充满活力,方案促使地下文化商街与科技馆连成一体。与东侧主广场、剧院大厅、南侧城市公共空间连通,成为沟通建筑和城市公共空间的重要通道。文化商街还是整座建筑日常运营中的重要组成部分,将布置了音乐教育、文化创意、餐饮、画廊、乐器销售等文化类、服务类产业,总规模达15806平米。
胡越讲述邢台大剧院设计方案 © CBC
人们经常诟病说某个城市没有特色、城市发展进入瓶颈期、缺乏活力等等,但我觉得城市从环境质量的提升到处理人与环境的关系层面,还有很大的发展空间。无论是中国的发达地区还是欠发达地区,城市发展还存在着很多根本性的问题。比如说存在的一个误区:投入越多、变化越快就是好。在中国城市进入一个新的发展阶段时,我们应该向质的方向转变,而不是仅仅看到数量和速度。


胡越工作室作品-北京东城区胡同改造项目(图片来源于胡越工作室官方微信公众号)


胡越工作室作品-未来科技城公园访客中心 © 陈溯
Q3 您认为CBC大师邀请赛将对邢台产生怎样的影响?您又是怎么理解邢台大剧院在城市中的定位的?
- 组织机构 -
主办单位
邢台市人民政府
承办单位
邢台市自然资源和规划局
策划执行单位
《城市·环境·设计》(UED)杂志社
<section style="margin: 0px; padding: 0px; max-width: 100%; box-sizing: border-box; color: rgb(51, 51, 51); font-family: -apple-system-font, BlinkMacSystemFont, " helvetica="" neue",="" "pingfang="" sc",="" "hiragino="" sans="" gb",="" "microsoft="" yahei="" ui",="" yahei",="" arial,="" sans-serif;="" letter-spacing:="" 0.544px;="" text-align:="" justify;="" font-size:="" 16px;="" word-wrap:="" break-word="" !important;"="">
- 为美丽河北而规划设计——第二届河北国际城市规划设计大赛 -
当下中国城市发展面临着众多挑战,同时也蕴含着新的发展机遇。新时代背景下,急需探索出立足于中国城乡创新的发展思路,邢台作为河北发展最快的城市之一,老城的空间布局已经不能满足城市快速发展的需求。因此以举办国际城市规划、建筑设计大赛为契机,通过大师邀请赛、国际竞赛的方式用创新性的方法解决邢台城市发展难题。
河北省以举办国际城市规划设计大赛为契机,全面提升城市规划设计水平,以高水平的设计理念和成果,促进城市创新发展、转型发展、绿色发展和高质量发展,打造富有活力、潜力、魅力和实力现代化城市。2019年3月27日,为美丽河北而规划设计——第二届河北国际城市规划设计大赛在河北省邢台市正式拉开帷幕。大赛由河北省住房和城乡建设厅主办,邢台市人民政府承办,邢台市自然资源和规划局组织,《城市·环境·设计》(UED)杂志社策划执行。
第二届河北国际城市规划设计大赛主要包含:邢东新区城市设计国际大师邀请赛、邢台大剧院建筑设计国际竞赛、邢台科技馆建筑设计国际竞赛以及第二届Q-CITY国际大学生设计竞赛。